Toggle navigation
IGCyr | GVCyr
it
en
fr
ar
Advanced Search
The project
IGCyr | GVCyr
Greek Cyrenaica
Scholarship
Table of Contents
Indices
Concordance
Series and Collections
Authored Editions, Articles and Monographs
×
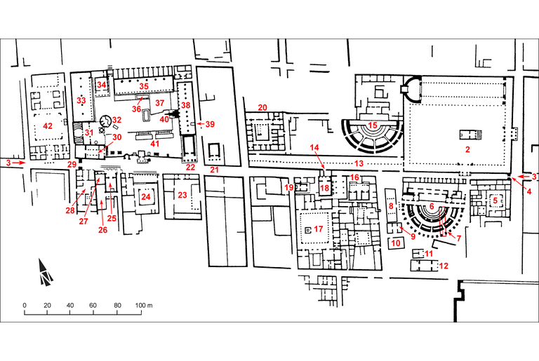
Apollonia
25 - Byzantine warehouses
26 - Kallikrateia Rock
3 - West Church
Port of Cyrene, later Apollonia
Apollonia seashore
6 - Roman Baths
West Necropolis
17 - Palace of the Dux
19 - East Church
Apollonia
@ Kenrick 2013
×
Berenike
Berenike
Hellenistic city walls
Church
Berenike
@ Kenrick 2013
×
Cyrene, Agora zone
12 - Temple of Venus
36 - Monument to the Gods
19 - Temple of Hermes
17 - House of Jason Magnus
Agora
32 - Temple of Demeter and Kore
3 - Street of Battos
3 - Street of Battos
8 - Temple of the Dioscuri
2 - Cesareum
25 - Temple of Zeus on the Agora
33 - West Stoa
42 - House by the Propylaeum
38 - East Stoa
15 - Theatre 2
22 - Temple of Asklepios
24 - Prytaneum
34 - Augusteum
18 - House of the Orthostats
11 - Temple of Cybele
30 - Temple of Apollo Archegetes
26 - Nomophylakeion
Cyrene, Agora zone
@ Kenrick 2013
×
Cyrene, Central quarter
Central quarter
50 - Public Building D
Cyrene, Central quarter
@ Kenrick 2013
×
Cyrene, general plan
115 - Theatre 5
City Wall
110 - East Church
Wadi Bel Ghadir
106 - Temple of Zeus
117 - Southern temple precint
116 - Enclosed sanctuary of Demeter and Kore
Southern Extra-Mural Sacred Zone
114 - Extra-Mural Temple of Demeter
Cyrene Museum
general plan
44 - Iseum
Acropolis
Cyrene, general plan
@ Kenrick 2013
×
Cyrene, North Necropolis
Sculpture Museum
Terrace of the Department of Antiquities
Kinissieh
North Necropolis
Cyrene, North Necropolis
@ Kenrick 2013
×
Cyrene, Sanctuary of Apollo
99 - Fountain of Apollo, Spring of Kyra
92 - Grotto of the Priests
77 - Temple of Apollo (Cella and Peristasis)
87 - Wall of Nicodamos
69 - Doric Fountain
104 - Stepped Portico
101 - Bench of Elaiitas
86 - Doric Treasury
82 - Myrtle Bower
73 - Temple of Dioscuri
80 - Lesche
102 - Rock-cut sanctuary near the Sacred Cave just south of the central lime-kiln of the series
97 - Temple of Jason Magnus
64 - Greek Propylaeum
68 - Roman Propylaeum
98 - Agora of the Gods
70 - Temple of Athena
89 - Greek Theatre
75 - Trajanic Baths
96 - Exedra of Apollo Karneios
78 - Temple of Latona
66 - Byzantine Baths
76 - Altar of Apollo
67 - Strategeion
Naiskos of the Carneadae
79 - Temple of Artemis
94 - Fountain of Philothales
81 - Temple of Hekate
74 - Altar of Artemis
Valley Street, North Side
Temple of Asklepios
Sanctuary of Apollo
Cyrene, Sanctuary of Apollo
@ Kenrick 2013
×
Euesperides
Euesperides
Euesperides
@ Kenrick 2013
×
Ptolemais, inner
Site plan inner
17 - Square of the Cisterns
21 - Theatre
12 - Fortress of the Dux
8 - Tetrastylon
9 - North-East quadrant
Ptolemais, inner
@ Kenrick 2013
×
Ptolemais, outer
31 - Basilica
36 - West Necropolis, Quarry 1
Site plan outer
South-West Necropolis
Wadi Ziwana
30 - Tokra Gate
Tolmeita Museum
Quarry Gate
East Necropolis
Wadi Khambish
32 - Amphitheatre
Ptolemais, outer
@ Kenrick 2013
×
Tocra
1 - Necropolis, Quarry East 3
9 - East Church
8 - East gate
3 - Tocra Museum
Taucheira
4 - Archaic votive deposit
12 - Byzantine 'fortress'
11 - Gymnasium
Tocra
@ Kenrick 2013